Corbeil-Essonnes (91100) LOFT CENTRE VILLE CORBEIL ESSONNES
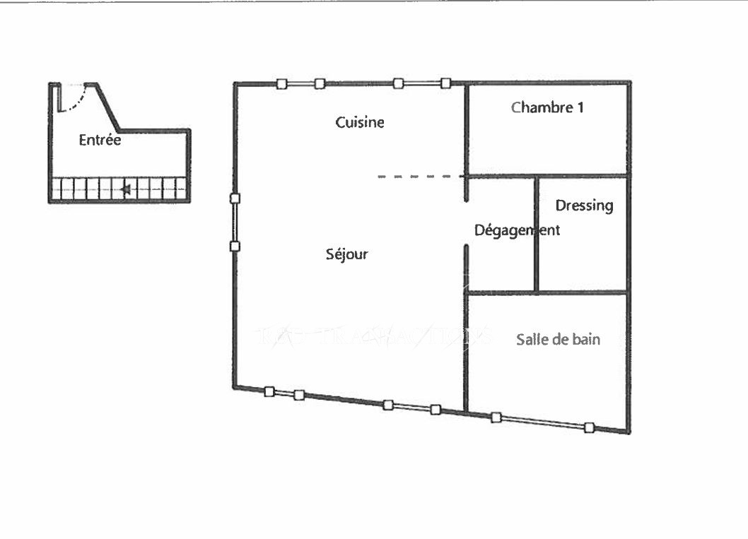
Centre ville, proche toutes commodités ( commerces/ transports), au sein d'un quartier pavillionnaire prisé pour son calme et la beauté des allées, un loft de caractère plein de charme de 158 m2 au sol ( 136 m2 carrez) aux volumes impressionnants avec ses 95 m2 de pièce à vivre et sa cuisine ouverte, sa lumière zenithale provenant de la majestueuse verriere dominant la pièce de vie. Le loft est distribué comme suit: une entrée avec rangements , un escalier menant à la pièce de vie, une chambre son dressing et une grande salle de bain,. A l'étage deux chambres sous la charpente . Au niveau RDC un garage de 60 m2 capable d'accueillir deux véhicules et Rangements. Nombreux travaux effectués dont le ravalement, l'isolation de la verrière, le changement des velux et installation d'un système de climatisation). Bon DPE ( D) . Possibilité d'annexer en sus un logement entièrement rénové au niveau RDC de 63 m2 libre de toute occupation pour une pleine propriété. Prix FAI 363 000 € dont 5% d'honoraires cahrge acqureurs. Reportage en cours.
Les caractéristiques Du bien
Les infos Financières
La base légale du traitement repose sur l’intérêt légitime de l'Agence / du Réseau.
Elles sont conservées jusqu'à demande de suppression et sont destinées à l'Agence / au Réseau.
Conformément à la loi « informatique et libertés », vous pouvez exercer votre droit d'accès aux données vous concernant et les faire rectifier en contactant l'Agence / le Réseau.
Si vous estimez, après avoir contacté l'Agence / le Réseau, que vos droits « Informatique et Libertés » ne sont pas respectés, vous pouvez adresser une réclamation à la CNIL.
Nous vous informons de l’existence de la liste d'opposition au démarchage téléphonique « Bloctel », sur laquelle vous pouvez vous inscrire ici : https://www.bloctel.gouv.fr
Dans le cadre de la protection des Données personnelles, nous vous invitons à ne pas inscrire de Données sensibles dans le champ de saisie libre
Ce site est protégé par reCAPTCHA, les Politiques de Confidentialité et les Conditions d'Utilisation de Google s'appliquent.
Détails des diagnostics énergétiques
Appartement T3 Centre ville avec Terrasse
